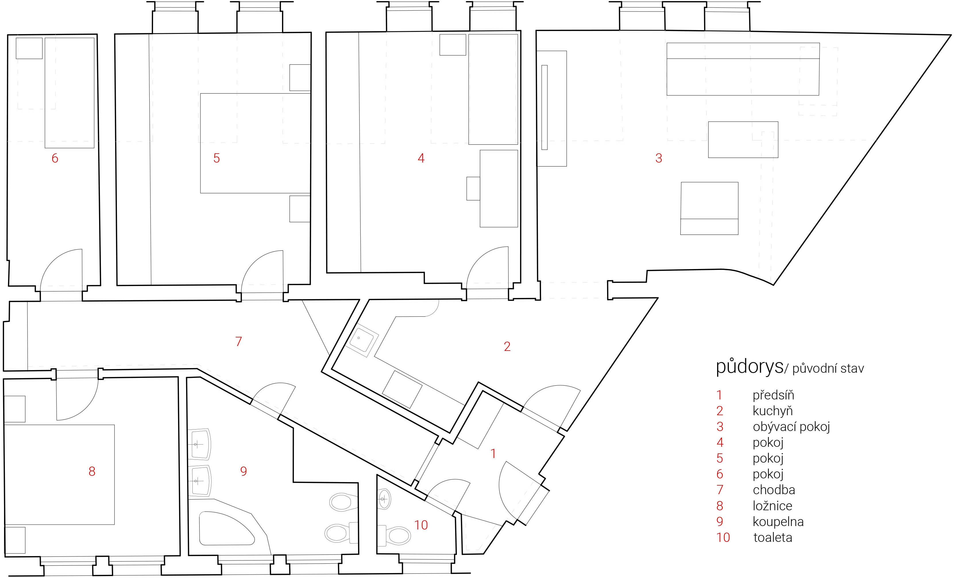
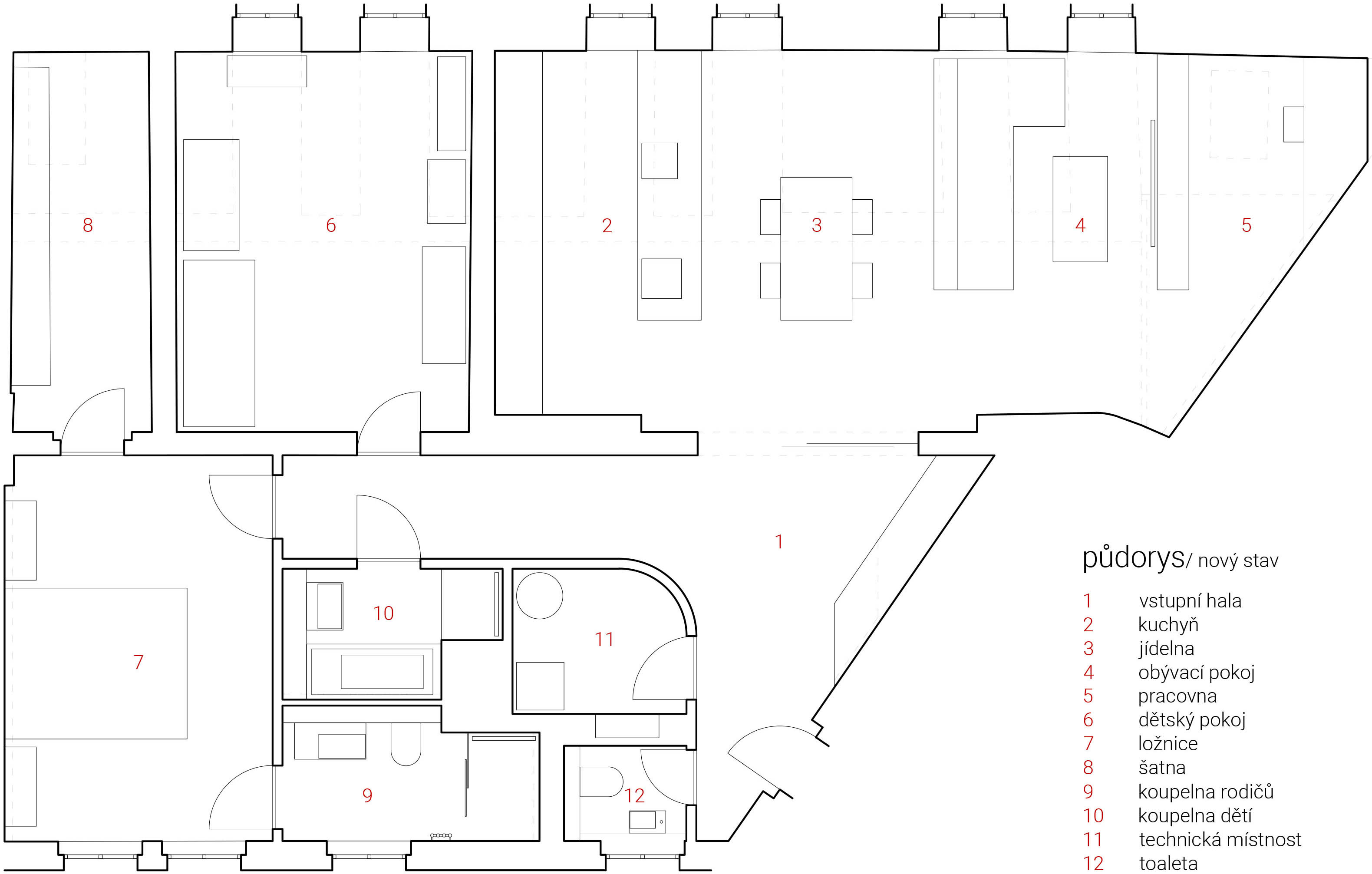
Záměrem investora byla kompletní přestavba původního bytu s dispozicí 5+1 na novou nadstandardní dispozici 3+kk. Původní dispozice byla nevyhovující velikostí místností, především zádveří, kuchyně a obývacího pokoje. Dispozičními úpravami byl také zvýšen standard bytu doplněním další koupelny a technické místnosti. Nově také vznikla oddělená šatna pro ložnici a také pracovna ve zkosené části obývacího pokoje. V jedné z místností byl vytvořen dětský pokoj. Výrazně velkorysejší je celkový vstup do bytu, který nově přímo navazuje posuvnými dveřmi na obývací pokoj. Návrh interiéru je laděný do odstínu dubu doplněného jemným tónem výmaleb. Charakter jednotlivých místností je dotvořen luxusními tapetami a různými typy svítidel. Architekt celý interiér navrhl tak, aby maximálně využit možnosti prostoru a vytvořil elegantní a nadčasový domov pro čtyřčlennou rodinu. Většina nábytku je vestavěná a umožňuje tak snadnou udržovatelnost bytu. Při rekonstrukci bytu bylo instalováno inteligentní ovládání bytu, které má na starost osvětlení, vytápění, chlazení, ovládání žaluzií, audia a alarmu.
Rekonstrukce bytu byla přihlášena do soutěže Interiéru roku 2021.
půdní vestavba
Heleny Malířové, Praha 6
návrh, projekt a realizace / 2020
